アイコン0467-33-0699受付時間 10:00~17:00
定休日 火曜・水曜

アイコン売却査定のご相談

アイコン物件の購入・賃貸のご相談

information物件情報

腰越1丁目新築住宅2025.11.23売買物件

腰越1丁目新築住宅 腰越1丁目新築住宅 腰越1丁目新築住宅 腰越1丁目新築住宅 腰越1丁目新築住宅 腰越1丁目新築住宅 腰越1丁目新築住宅 腰越1丁目新築住宅 腰越1丁目新築住宅 腰越1丁目新築住宅 腰越1丁目新築住宅 腰越1丁目新築住宅 腰越1丁目新築住宅 腰越1丁目新築住宅 腰越1丁目新築住宅
腰越1丁目新築住宅 腰越1丁目新築住宅 腰越1丁目新築住宅 腰越1丁目新築住宅 腰越1丁目新築住宅 腰越1丁目新築住宅 腰越1丁目新築住宅 腰越1丁目新築住宅 腰越1丁目新築住宅 腰越1丁目新築住宅 腰越1丁目新築住宅 腰越1丁目新築住宅 腰越1丁目新築住宅 腰越1丁目新築住宅 腰越1丁目新築住宅

当物件の特徴

  1. 価格

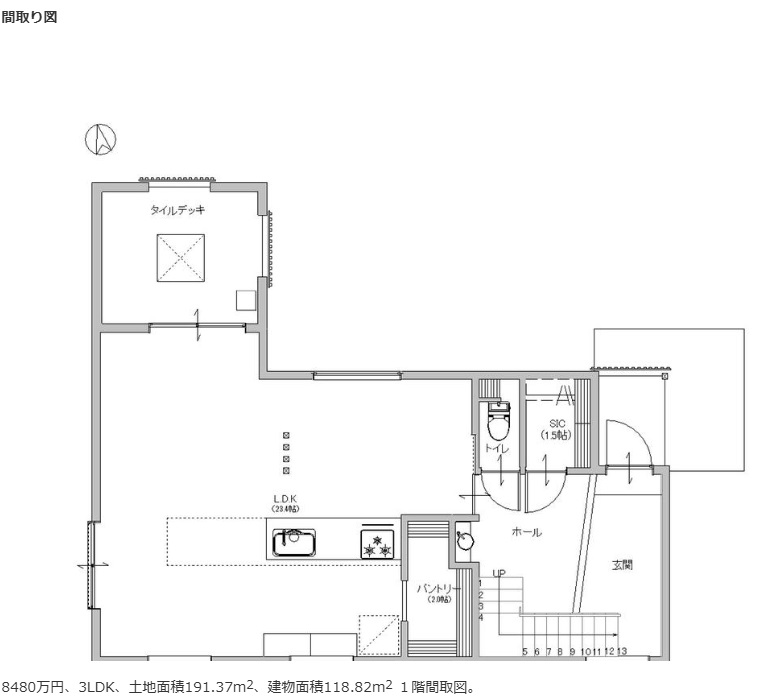
    8,480万円

  2. 住所

    鎌倉市腰越1丁目

  3. 路線‧最寄駅

    江ノ島電鉄線「鎌倉高校前駅」徒歩5分

  4. 敷地⾯積

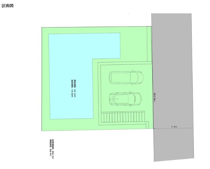
    191.25㎡(訳57.85坪)

  5. 建物⾯積

    118.82㎡(35.94坪)

  6. 構造‧階数

    木造・スレート葺・2階建

  7. 間取り

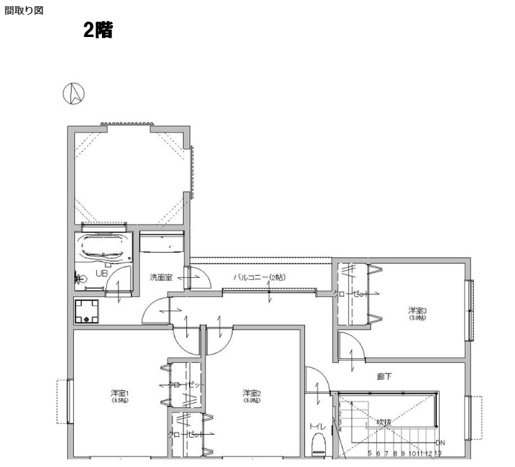
    3LDK+S

  8. 築年⽉⽇

    2026年3月新築完成予定

  9. 接道

    北側5.12m公道

  10. 敷地権利形態

    所有権

  11. バルコニー‧窓向き

    南向き

  12. 駐⾞場

    2台

  13. 引渡し時期

    2026年4月中旬

  14. 取引態様

    仲介

CONTACTお問い合わせ

ご相談やご質問など些細なことでも
お気軽にお問い合わせ下さい。

アイコン売却査定の無料相談はこちら

アイコン0467-33-0699

受付時間10:00~17:00
定休日 火曜・水曜

アイコン物件購入・賃貸のご相談

売却査定の無料ご相談